21 Industrial Properties for sale in Windhoek

Property #2425775, Industrial For Sale in Northern Industrial
Northern Industrial
N$ 12,000,000
Northern Industry - Warehouse For Sale
Just Listed
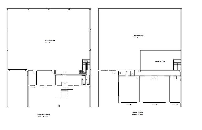
Efficient logistics hub on a quiet street with property-front parking and 5-ton truck circulation. Three loading bays, 3,500 m² open-plan space and four strong rooms.
3,500m²
Property #2067377, Industrial For Sale in Prosperita
Prosperita
N$ 5,600,000
Prosperita Warehouse For Sale
Grow your business in Prosperita with street-front exposure and secure complex access; double-volume warehouse, roller doors, four offices, reception, kitchens and 10 parking — tenant negotiable.
541m²
Property #2403341, Industrial For Sale in Northern Industrial
Northern Industrial
N$ 46,500,000
Northern Ind For Sale
Industrial property for sale, 22,200 m² land size, N$ 46,500,000.00 with transfer duties included.
22,200m²
22,200m²
Property #2401336, Industrial For Sale in Southern Industrial Area
Southern Industrial Area
N$ 9,500,000
Two Warehouses For Sale - Southern Ind
Prime Southern Industrial site: two modern warehouses with extensive upper-level offices, raised dispatch bay, server room and centralized water-cooling — N$9.5m each or N$18m together.
776m²
Property #2401322, Industrial For Sale in Brakwater
Brakwater
N$ 27,450
Brakwater Warehouse To Let
300m² warehouse for rent at N$ 27,450 excl. VAT/water/electricity; shared with two other tenants.
135m²
Property #2396459, Industrial For Sale in Northern Industrial
Northern Industrial
N$ 1,350,000
Barleo Park For Sale N$ 1 350 000.00 Incl Costs (negotiable)
Reduced
Streamline operations in Barleo Park's industrial precinct with secure access and curb appeal — double-story warehouse featuring a concrete showroom, ground-floor reception, kitchenette, and two bathrooms.
167m²
Property #2374316, Industrial For Sale in Brakwater
Brakwater
N$ 3,500,000
Light Industrial Plots For Sale - Location Location Location
Scale your operations from a prime Brakwater address on Cow Collector Road, close to major transport links. Expansive 3,500 m² light-industrial plot, unserviced — bring your development plans.
3,500m²
Property #2336600, Industrial For Sale in Lafrenz Industrial
Lafrenz Industrial
N$ 9,650,000
Open Erf For Sale - Lafrenz
Industrial property for sale at N$ 9,650,000, size 5,215 m2, open erf with transfer portion included.
5,215m²
Property #2336599, Industrial For Sale in Lafrenz Industrial
Lafrenz Industrial
N$ 10,930,000
Open Erf For Sale - Lafrenz
Industrial property for sale at N$ 10,930,000, size 6,247 m2, includes portion of transfer.
6,247m²
Property #2336597, Industrial For Sale in Lafrenz Industrial
Lafrenz Industrial
N$ 8,915,150
Open Erf Lafrenz For Sale
Reduced
Industrial property for sale at N$ 11,915,000, 4819 m2 size, open erf with transfer portion included.
4,819m²
Property #2321888, Industrial For Sale in Prosperita
Prosperita
N$ 5,204,000
Warehouse For Sale Prosperita
602m² warehouse with mezzanine, offices, reception, kitchen, ablution, and shared yard. Long-term tenant in place. N$ 5 204 000.
602m²
Property #2263578, Industrial For Sale in Elisenheim
Elisenheim
N$ 24,000,000
Open Erf For Sale
Prime 3-hectare development site with electricity and water, optional warehouse portion — ideal for industrial or commercial projects. Viewing essential. N$24,000,000 negotiable.
3ha
Property #2263115, Industrial For Sale in Lafrenz Industrial
Lafrenz Industrial
N$ 11,000,000
Lafrenz Warehouse For Sale - N$ 11 000 000 Make An Offer (costs Included)
Prime industrial property in Lafrenz offering expansive double‑volume warehouses, separate offices and lean‑to store on 2,733 m² with paved yard and secure boundary wall — 1,406 m² floor area.
1,406m²
2,733m²
Property #2255776, Industrial For Sale in Brakwater
Brakwater
N$ 25,000,000
Brakwater Property For Sale - A Must See
Brakwater property for sale at N$ 25M, valued at N$ 34.6M, includes living quarters, warehouses, workshops, and storage facilities.
5.0,735ha
5.0,735ha
Property #2252672, Industrial For Sale in Lafrenz Industrial
Lafrenz Industrial
N$ 6,400,000
Prime Property For Sale - Lafrenz
Industrial property for sale at N$ 6.4M, 1750m², with two tenants, retail and office spaces, ample parking, and loading facilities.
1,750m²
Property #2192081, Industrial For Sale in Brakwater
Brakwater
N$ 16,130,000
Light Industrial Erf For Sale
Prime light‑industrial land (16.13ha) with direct B1 access to Windhoek or Okahandja; NamPower and NamWater connected, CC‑registered. Asking N$1M/ha (negotiable).
16.13ha
Property #2192083, Industrial For Sale in Brakwater
Brakwater
N$ 20,000,000
Light Industrial Erf For Sale
Prime B1-corridor 20ha acreage with registered servitude, Nampower supply available — ideal to subdivide and sell parcels. Priced at 1 million (negotiable).
20ha
Property #2165364, Industrial For Sale in Brakwater
Brakwater
N$ 29,790,040
Brakwater Industrial Property For Sale
Industrial property for sale: 215,616 m² with warehouse (600 m²), two sheds (300 m² each), and additional storerooms.
215,616m²
215,616m²
Property #2075090, Industrial For Sale in Prosperita
Prosperita
N$ 28,000,000
Open Erf For Sale - Prosperita - Negotiable
Vacant industrial erf for sale in Prosperita, 1.8 hectares. Offers welcome; requires transfer from company ownership.
1.8ha
18,000m²
Property #2057569, Industrial For Sale in Prosperita
Prosperita
N$ 80,000,000
Large Industrial Building For Sale - Make An Offer
A-grade light industrial property with 14 offices, 4 retail areas, and 3 warehouses on 10,137m². Total floor size: 6,600m².
6,600m²
10,137m²
Property #1983360, Industrial For Sale in Prosperita
Prosperita
N$ 4,515,000
Prosperita Warehouse For Sale
Prosperita Warehouse for sale with reception, office, kitchenette, ablution facilities, two offices, storeroom, double volume, secure complex, ample parking. Offer needed.
412m²
Ready to sell in Windhoek?
Get a market estimate on your property from one of our qualified real estate professionals.
Get Windhoek email alerts
Sign up and get notified as soon as the new industrial properties becomes available in this area.